For Sale $650,000 - Residential, Villa
Ephesus Villas – Renovated Corner Villa (Type A)
Situated in the heart of Bahçeşehir, this corner villa in the prestigious Ephesus Villas development offers a fully renovated and expanded living space. The 4‑storey home combines high‑quality materials with thoughtful design to meet the demands of modern living.
Floor Plan and Area Breakdown
-
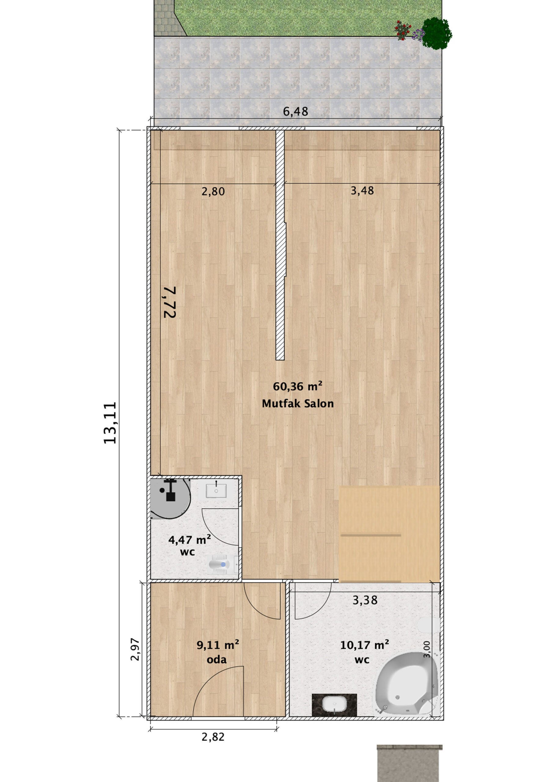
Garden Level (‑1): 84.11 m² net / 149.11 m² gross (50 m² garden + 15 m² terrace). A spacious kitchen and living area separated by an island (60.36 m²), two WC facilities (4.47 m² and 10.17 m²), one bedroom (9.11 m²) and a laundry room are on this level. A jacuzzi bathroom and traditional Turkish WC complement this floor, which opens directly onto the veranda and private garden.
-
Ground Floor: 85.15 m² net / 101.52 m² gross (16.37 m² terrace). A second main entrance leads to a bright living room (45.14 m²), a guest bedroom (13.49 m²) with an en‑suite WC (3.35 m²), and an entrance hall with a cloakroom (16.83 m²). This level features a generous terrace and portico.
-
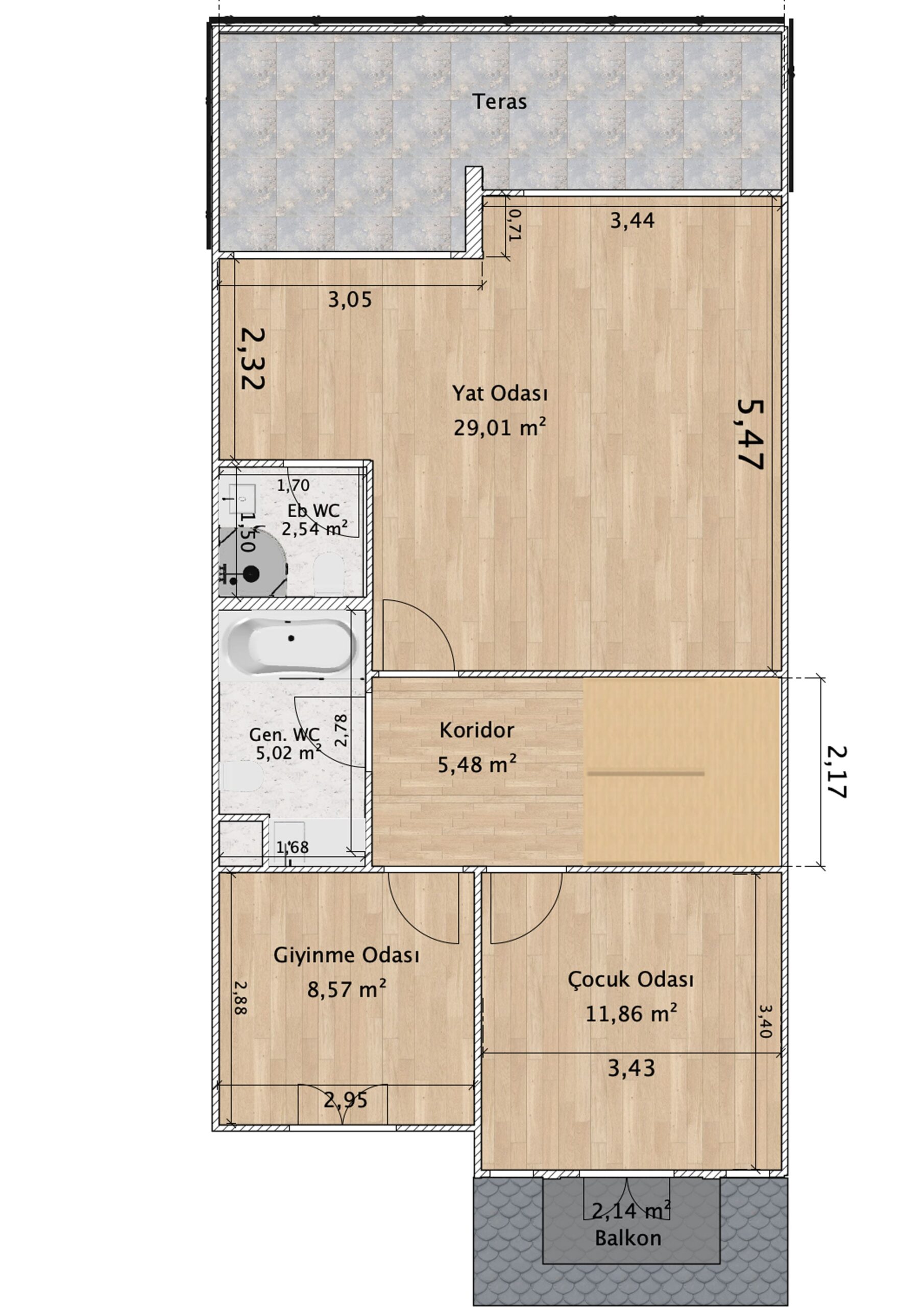
First Floor: 62.48 m² net / 80.48 m² gross (18 m² terrace). The master suite comprises a bedroom (29.01 m²), en‑suite bathroom (2.54 m²) and dressing room (8.57 m²); a children’s bedroom (11.86 m²), a general bathroom (5.02 m²) and corridor (5.48 m²) complete this level. Full‑length sliding doors in the master bedroom open onto a private terrace with uninterrupted green and sea views.
-
Second Floor: 43.74 m² net / 47.86 m² gross. This top level offers a high‑ceilinged study/hobby room (31.84 m²) with sea views, a hall with kitchenette (7.60 m²), an upper WC (4.30 m²) and a storage room (4.12 m²). A retro wood‑burning stove adds character.
Net area excludes terraces and gardens; gross area includes them. A room‑by‑room area table is provided at the end.
Villa Features
-
Layout: 6 rooms + 2 living rooms; total gross 378.97 m², net 275.48 m².
-
Materials: Bathrooms fitted with Vitra fixtures; premium aluminium sliding Spanish windows; electrically operated anthracite shutters; oak staircases; new parquet and ceramic flooring.
-
Bathrooms & Heating: Six bathrooms (two with Jacuzzi). An active fireplace distributes heat to upper floors via vents; a Daikin climate system is installed on the middle level.
-
Kitchen: Dual worktops, two sinks, two cooktops and a central island create a spacious, functional cooking area.
-
Entrances: Separate entrances on the garden and ground floors allow for two independent living spaces, ideal for hosting guests simultaneously.
-
Outdoor Spaces: A 50 m² private garden and additional verandas provide generous outdoor areas; the corner plot affords greater privacy and open views.
-
Location & Views: Elevated corner position ensures the villa is not overlooked; lush surroundings and sea views are visible from many rooms.
Site Amenities & Surroundings
Ephesus Villas is an exclusive development of 72 four‑storey villas (mainly 5+2 layouts) in central Bahçeşehir. Residents enjoy two outdoor swimming pools, a children’s playground, basketball court, sports facilities, a café and an open‑air parking area. The villa has two private parking spaces plus guest parking. A 24‑hour security team and controlled entry points ensure peace of mind. 3M Migros, Media Markt, the post office (PTT), municipal services, public transport stops and Bahçeşehir’s Bankalar Avenue are all within walking distance.
Highlights
-
Fully renovated and expanded Type A corner villa.
-
Corner plot with height advantage ensures privacy and expansive green/sea views.
-
Six bathrooms (two with Jacuzzi); high‑quality finishes throughout.
-
Heat‑distributing fireplace, oak staircases and Daikin climate control.
-
Two independent living rooms and two separate entrances.
-
On‑site pools, playground, sports courts and 24/7 security.
-
Walking distance to shopping, schools and transport.
















admin
on said
Bu villa hemen taşınmak için hazır mı ?
admin
on said
2026 Ocak ayı itibarı ile taşınmaya hazır.